PLAN PARCIAL - LAS VIÑAS II · CEUTÍ (MURCIA)

11 VIVIENDAS, GARAJES, TRASTEROS Y TERRAZAS PRIVADAS.

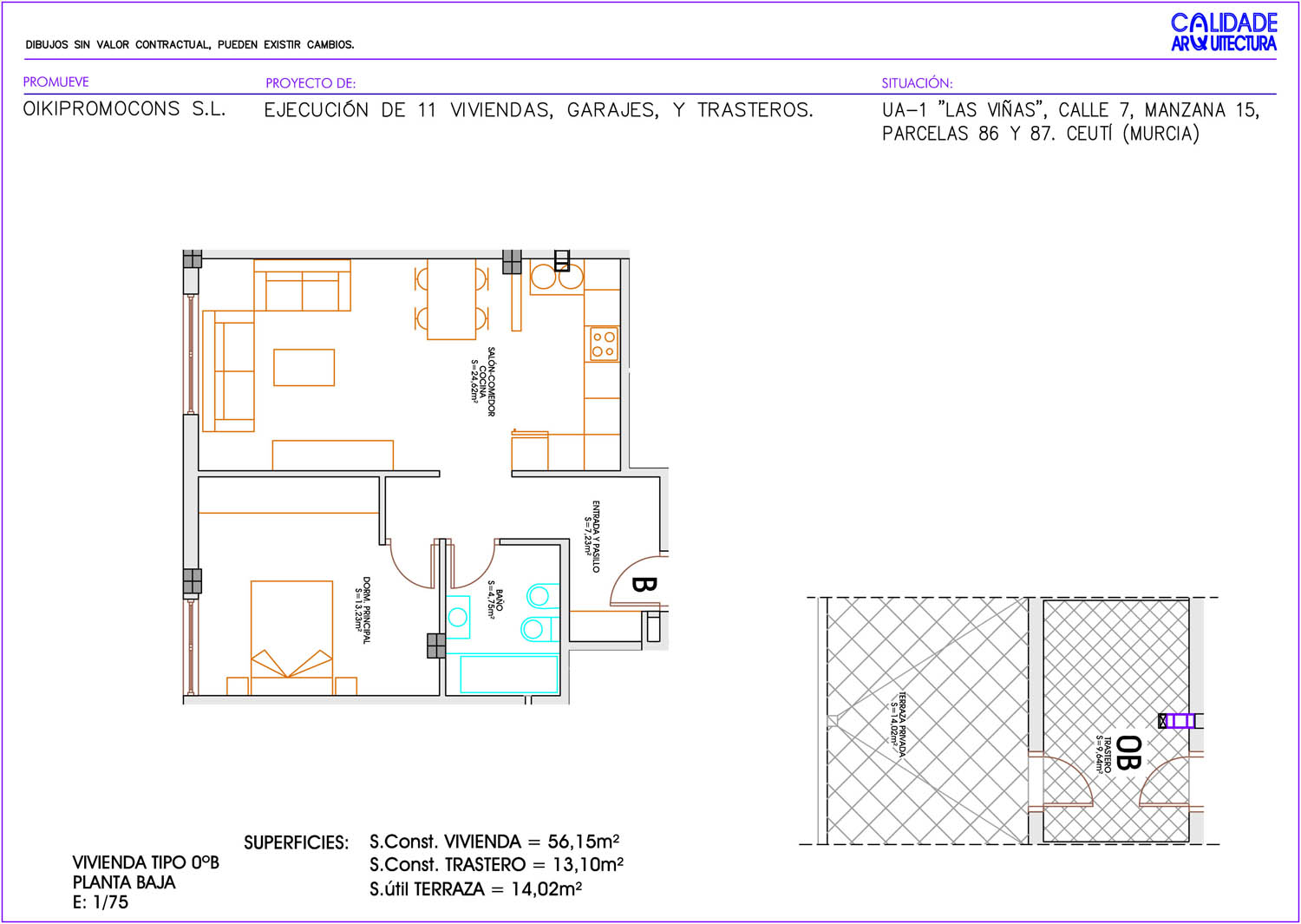
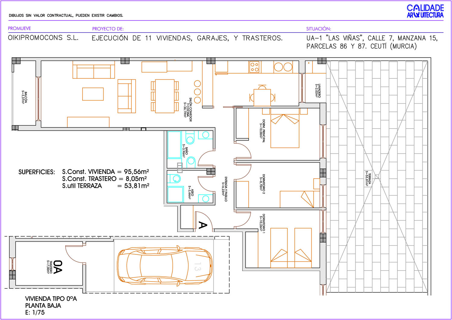
Bajo A  Bajo B  Bajo C 

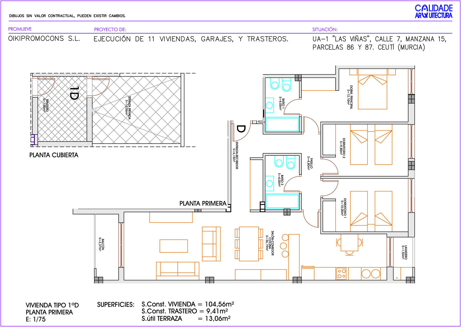
1º A  1º B  1º C  1º D

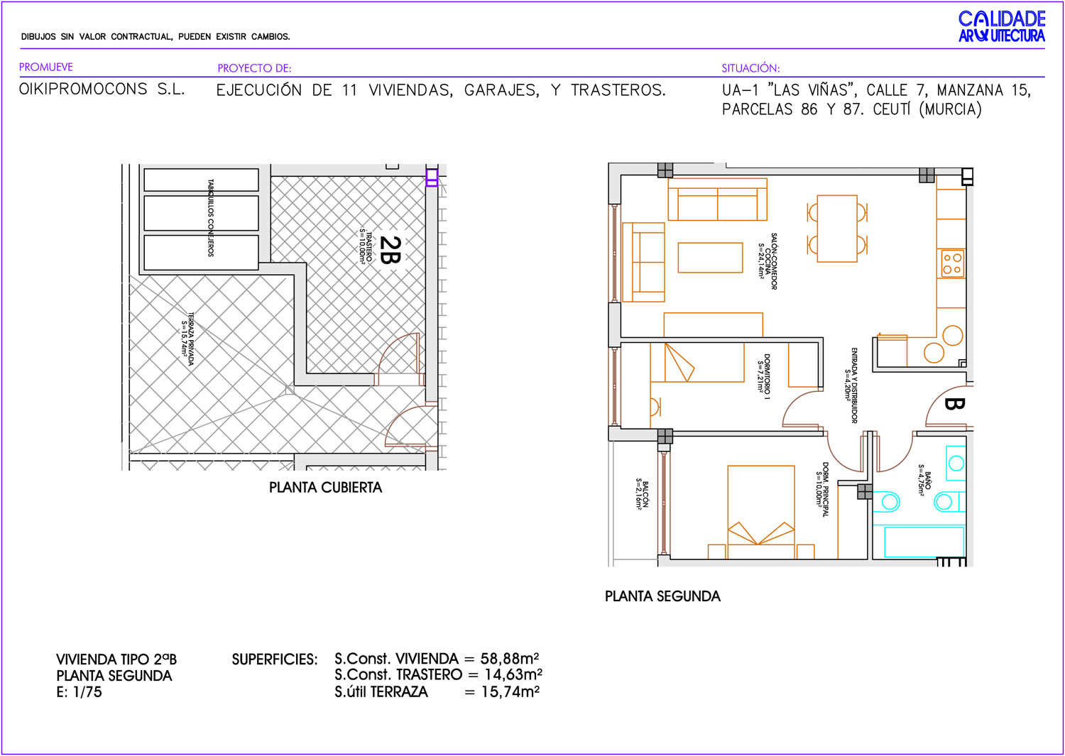
2º A  2º B  2º C  2º D

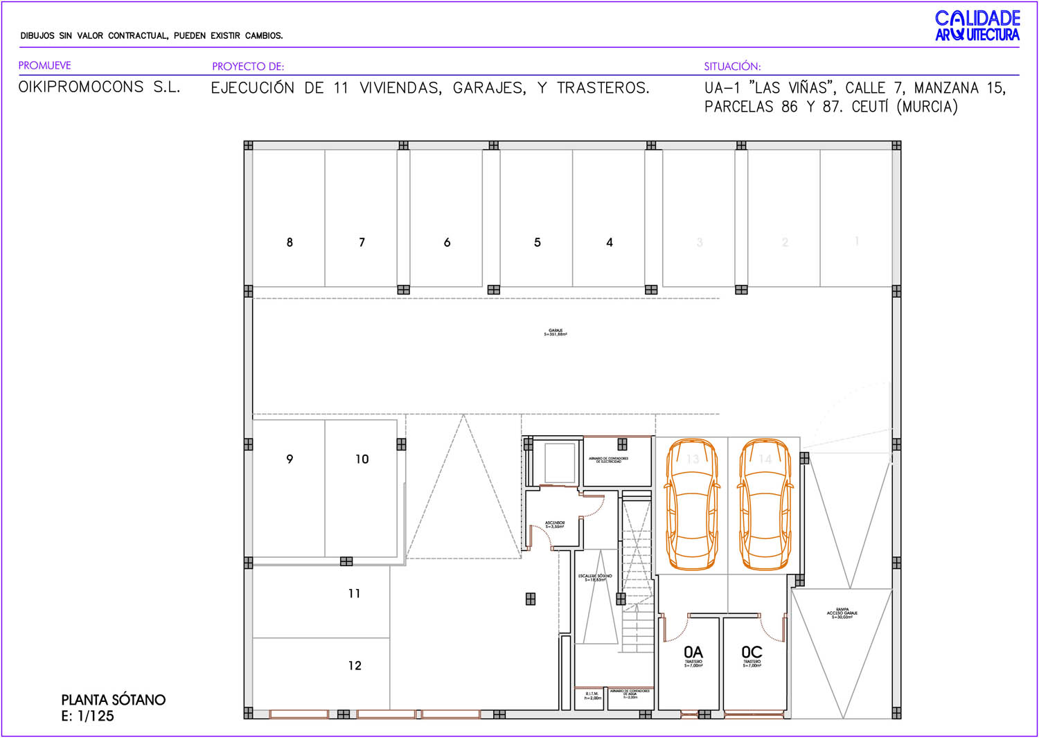
Planta Sotano  Planta Baja

Planta Primera  Planta Segunda

Planta Cubierta

 

PLANOS Y SUPERFICIES

EmpresaPromocionesReformasContacto

 

Diseño: www.juanjogonzalez.com